장애인 고려한 피난기구, 첫 특허출원
기존 사다리식 피난기구 문제점 보완해
본문
특허청은 장애인과 노인의 안전한 피난을 고려한 피난기구가 처음으로 특허를 받았다고 21일 발표했다.
특허청에 따르면 40층 이상의 아파트 등 초고층 건물들이 쏟아져 나옴에 따라 각종 피난제품 특허출원도 급격히 증가하고 있으나 대부분의 피난기구가 장애인이나 노약자가 이용하기 힘든 ‘사다리형’이어서 이들을 위한 제품 개발이 절실했다고.
이런 가운데 국내 한 중소기업이 장애인과 노약자들도 이용 가능한 새로운 개념의 피난기구 특허등록을 받아 관심을 모으고 있다.
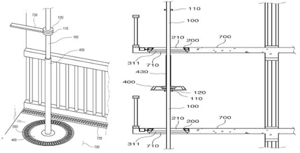
이 기구는 화재에 취약한 고층건물에 적합한 형태로, 기본 구성은 아파트의 모든 세대의 발코니를 관통하는 봉과, 각 세대에 설치된 발판으로 이뤄졌으며, 화재 발생 시 발코니에서 발판이 분리돼 아래층으로 자동 하강토록 설계돼 있다.
발판은 평상시에는 작동치 않다가 화재 발생 시에만 잠금장치가 해제되기 때문에 종래 피난 사다리의 문제점으로 제기돼 온 범죄악용의 소지를 해소했으며, 사용자가 발판에 올라가 봉을 잡고 아래층으로 이동하는 조작방법 역시 종래의 피난기구에 비해 매우 간편하다.
특허청에 따르면 40층 이상의 아파트 등 초고층 건물들이 쏟아져 나옴에 따라 각종 피난제품 특허출원도 급격히 증가하고 있으나 대부분의 피난기구가 장애인이나 노약자가 이용하기 힘든 ‘사다리형’이어서 이들을 위한 제품 개발이 절실했다고.
이런 가운데 국내 한 중소기업이 장애인과 노약자들도 이용 가능한 새로운 개념의 피난기구 특허등록을 받아 관심을 모으고 있다.
![]() |
||
| ▲ 새로운 개념의 피난기구(특허등록 제952387호) | ||
발판은 평상시에는 작동치 않다가 화재 발생 시에만 잠금장치가 해제되기 때문에 종래 피난 사다리의 문제점으로 제기돼 온 범죄악용의 소지를 해소했으며, 사용자가 발판에 올라가 봉을 잡고 아래층으로 이동하는 조작방법 역시 종래의 피난기구에 비해 매우 간편하다.
작성자전진호 기자 0162729624@hanmail.net
Copyright by 함께걸음(http://news.cowalk.or.kr) All Rights Reserved. 무단 전재 및 재배포 금지
댓글목록
등록된 댓글이 없습니다.







